카테고리 없음

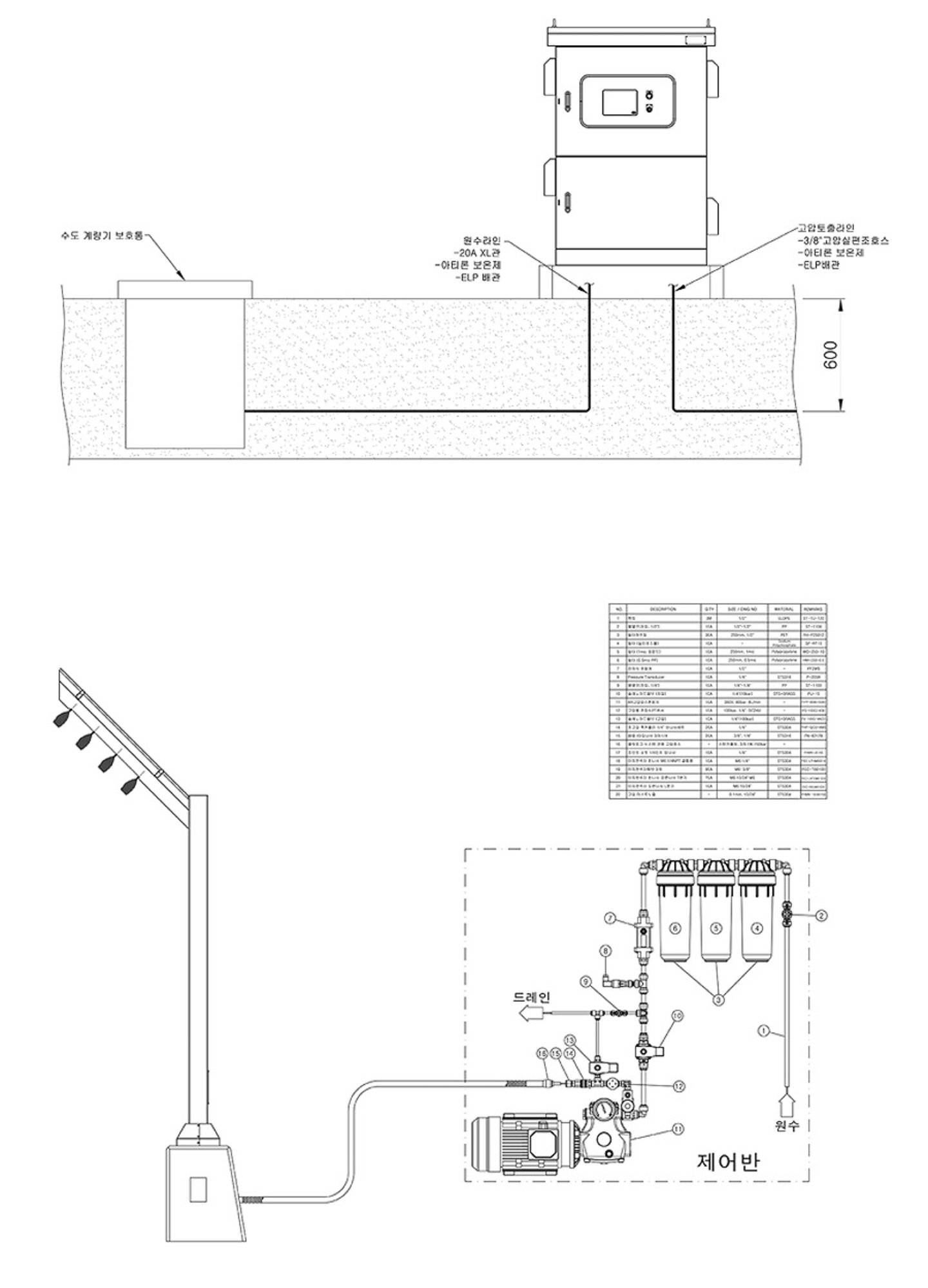
서울특별시 노원구 화랑대공원 필터테크 쿨링포그시스템 ㄱ자형 5노즐 조명형 미스트폴대 시공완료 폭염저감시설

주식회사 필터테크의 인공안개시스템 방역 쿨링포그시스템 2025. 8. 12. 01:19

서울특별시 노원구 화랑대공원 필터테크 쿨링포그시스템 ㄱ자형 5노즐 조명형 미스트폴대 시공완료 폭염저감시설


https://water777.co.kr/goods/view?no=245113


http://zong.kr